築48年のマンションをフルリフォーム
品川区賃貸マンション/フルリフォーム
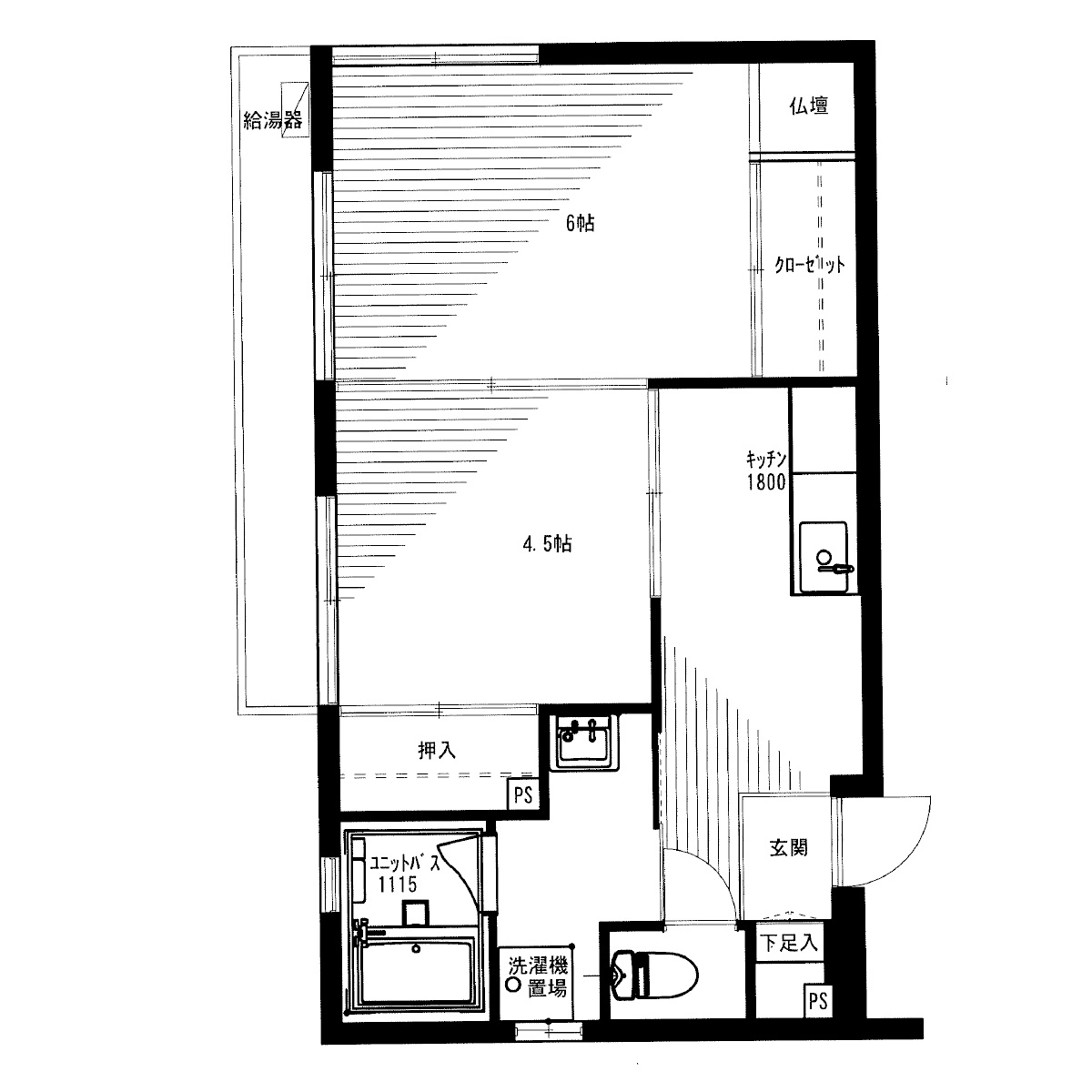
キッチン・バス・トイレ・洗面台・各お部屋とそして給排水管と入居者が決まりやすくなるようフルリフォームしました。
見掛けの美しさも大事ですが、直接見えない給排水管の材質が鉄で腐食して流れも悪く漏水の危険性もありました。
給湯管も銅管で漏水の可能性もあるため架橋ポリエチレン管に交換しました。
また、お湯はお風呂場のバランス釜から取っていましたが湯量が無く快適ではない為、給湯器を設置しました。
お風呂はタイルからユニットバスに変更し、排水管の勾配が無くて流れが悪かった問題も解決しました。
畳だった和室は洋室に変え、押入れはふすまではなく白の木製引き戸に作り直してクローゼットにしました。
洗面台は窓の位置の関係で正面に鏡が付けられなかったため、床の間をなくして広くした所に洗面台を設置し、窓の下を洗濯機置場しました。
さらにタンク式トイレを入れる為にトイレを拡張しました。



























